Villa singola in vendita

Fontanelle, Via Calleselle
€ 200.000
4 locali 4 locali
220 Mq 220 Mq
2 bagni 2 bagni

Villa singola in vendita

Fontanelle, Via Calleselle

Descrizione annuncio

L'Agenzia immobiliare Tecnocasa di Oderzo propone, nel comune di Fontanelle, un abitazione indipendente con immobile rustico adiacente, proposta a parte.

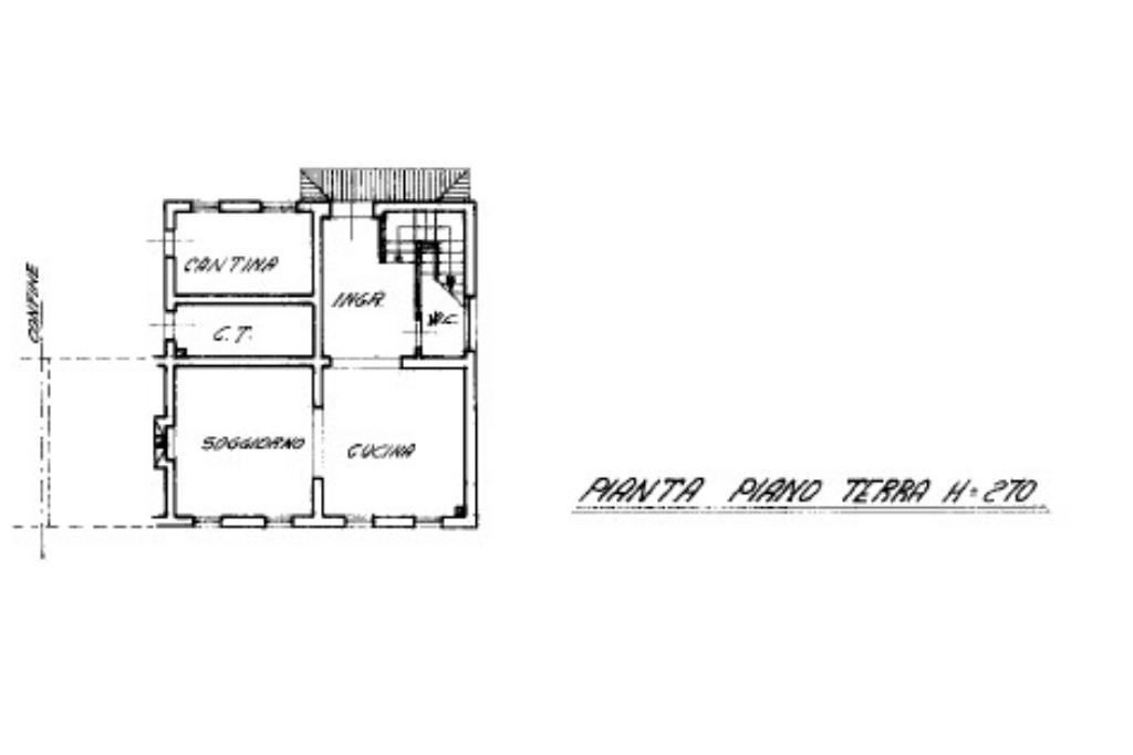
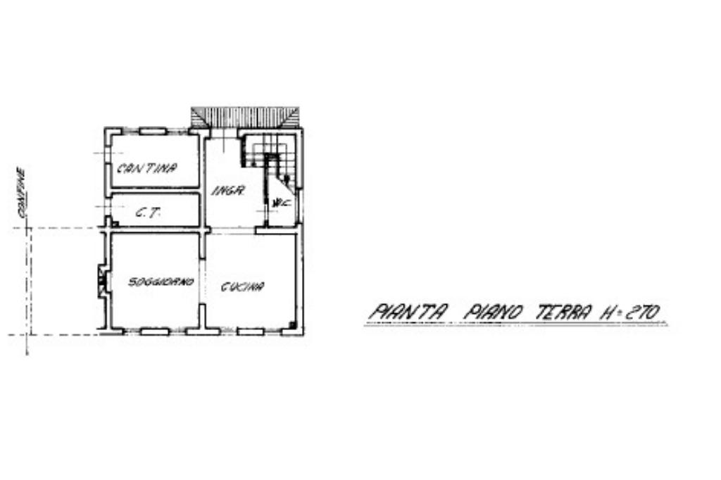
L'immobile, edificato negli anni '70 ed attualmente abitato, si sviluppa su due livelli fuori terra. Al piano terra, dopo l'ingresso, troviamo una cucina con soggiorno separato da un apertura ad arco. Completa il piano terra un servizio e le scale, che ci conducono al piano superiore, dove troviamo distribuite a destra e a sinistra del disimpegno due camere matrimoniali, il secondo bagno finestrato e la terza camera con cabina armadio.

In adiacenza all'immobile, venduto a parte, troviamo una porzione rustica con uno scoperto che sarà frazionato al momento della vendita dell'immobile.

Mostra tutto

Nelle vicinanze

Ricariche auto elettriche Ricariche auto elettriche
Fontanelle Confartigianato
2,6 Km
Scuole Scuole
Scuole
1,7 Km
Bar Bar
Divine Cafè
1,8 Km
Blue Bols
1,8 Km
Ristoranti Ristoranti
Pizzeria Al Tajer
2,4 Km
Mostra tutto

Caratteristiche

Rif.:
61152819
Piano:
2 di 2 (Piano su più livelli)
Box:
1
Posti auto:
1
Camere da letto:
3
Arredamento:
Assente
Mostra tutto
Prezzo Prezzo
€ 200.000
Rata mutuo Rata mutuo
€ 943 / mese
Spese annue Spese annue
€ 0
Proponi il tuo prezzoProponi il tuo prezzo

Classe Energetica

G
G
G
G
G
G
G
G
G
EP globale non rinnovabile:
240.74 kW h/m² anno
EP globale rinnovabile:
1.00 kW h/m² anno
EP invernale del fabbricato:
EP estiva del fabbricato:
Anno di costruzione:
1970
Riscaldamento:
Autonomo
Tipo impianto:
A stufa
Tipo alimentazione:
Altro

Ti interessa visionare l'immobile?

Fissa un appuntamento  Fissa un appuntamento

Richiedi informazioni

Clicca su Leggi per aprire l'informativa
* Questi campi sono obbligatori

Calcola il tuo mutuo

Semplice e senza impegno
Anticipo

( % )
Mutuo

( % )

pochi semplici passi

inserisci i tuoi dati
Questionario completato
Grazie per aver richiesto un appuntamento senza impegno con un nostro Consulente del Credito e Assicurativo.

Hai inserito correttamente tutti i dati necessari e a breve riceverai una e-mail con un link da convalidare per inviare i tuoi dati.
Affiliato
Up Sas
Via P. Frassinetti, 14 31046 Oderzo (TV)

Il nostro staff


  • Mattia Biliato
    Affiliato

  • Michael Cincotti
    Affiliato
Via P. Frassinetti, 14 31046 Oderzo (TV)
Zona: Oderzo
Mostra su mappa
Affiliato
Up Sas
Via P. Frassinetti, 14 31046 Oderzo (TV)

2026 Tecnocasa Franchising S.p.A. - P. IVA 08365160152 - Via Monte Bianco 60/A 20089 Rozzano (MI). Ogni agenzia ha un proprio titolare ed è autonoma. Privacy policy | Policy utilizzo | Cookie policy